Immobilier Monaco

Location de bureaux à Monaco

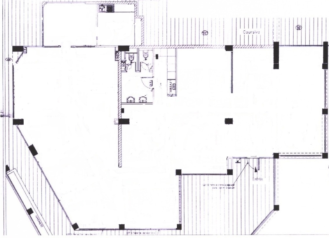
FONTVIEILLE - BUREAU 290 M² A LOUER

Retour à la liste

25 000 € (+charges : 1 900 €)
Nombre de pièces : 6
Type de bien : Bureau
Ville : Monaco
Superficie hab. : 290 m²
Superficie totale : 290 m²
Etage : RDC
Libération : Immédiatement
Parkings : 2

A Fontvieille beaux bureaux de 290 m²  (partiellement meublés et équipés) face à la mer. Très lumineux

Les bureaux se composent : d'un open space, grande salle de réunion ou bureau de direction,  plusieurs bureaux, un local archives, un local informatique, un dégagement, wc (homme et femme) une cuisine entièrement équipée, espace détente.  L'ensemble des bureaux est équipé de climatisation

2 parkings complètent ce bien 

Possibilité bail commercial 

 

 


Situation du bien

Contact

* informations obligatoires

Retour à la liste

FR EN IT