Immobilier Monaco

Bureaux à vendre à Monaco

Spacieux Bureau avec parkings

Retour à la liste

5 405 000 €
Nombre de pièces : 5 pièces
Type de bien : Bureau
Ville : Monaco
Superficie hab. : 147 m²
Superficie totale : 147 m²
Etage : 1
Libération : À convenir
Parkings : 2

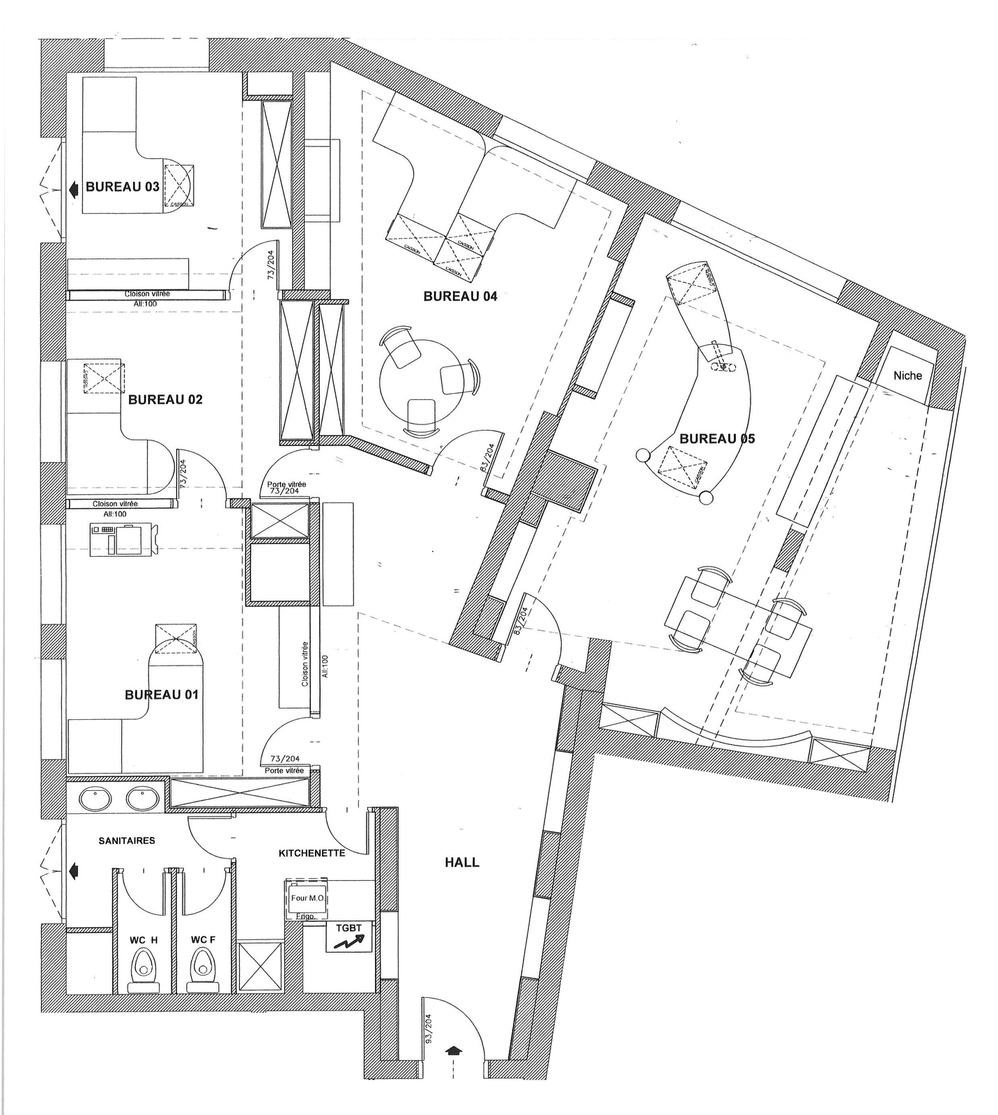
Ces locaux de standing agencés et décorés avec goût peuvent être vendus avec le mobilier.

Ils se composent de 5 zones de travail, 1 kitchenette et 1 zone sanitaires.

De nombreuses fenêtres assurent une belle luminosité.

Ils sont actuellement loués jusqu'au 14 octobre 2027.


Situation du bien

Contact

* informations obligatoires

Retour à la liste

FR EN IT