BOULEVARD D'ITALIE - MURS COMMERCIAUX AVEC VITRINE
Très belle opportunité à saisir. Murs commerciaux à la vente avec vitrine situés sur le boulevard d'Italie, axe très emprunté de la Principauté et proche de toutes commodités.
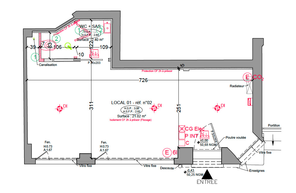
Murs commerciaux avec vitrines situés en rez-de-chaussée d’un immeuble bourgeois du quartier résidentiel de La Rousse – Saint-Roman. Idéalement positionné, le boulevard d’Italie bénéficie d’une forte fréquentation piétonne et automobile tout au long de l’année. Le local se trouve à proximité de toutes les commodités et de la place des Moulins.
Ce local a été partiellement rénové et mis aux normes. Il se compose d'une entrée depuis la rue, un espace de vente-accueil et un WC mixte avec lavabo. Trois vitrines d'environ 5 mètres linéaires offrent une très belle surface de présentation depuis le boulevard.