Immobilier Monaco

Bureaux à vendre à Monaco

VILLA MINERVE - Monte Carlo - 6 Pièces

Retour à la liste

Monte-Carlo, à proximité immédiate du Carré d’Or, dans un immeuble de standing en plein cœur de Monaco.
Cet appartement, à usage mixte et sous loi 887, offre un cadre de vie élégant avec une vue sur Port Hercule.

10 300 000 €
Nombre de pièces : 6
Type de bien : Appartement
Ville : Monaco
Superficie hab. : 185 m²
Superficie totale : 185 m²
Libération : Libre
Lois : Loi 887

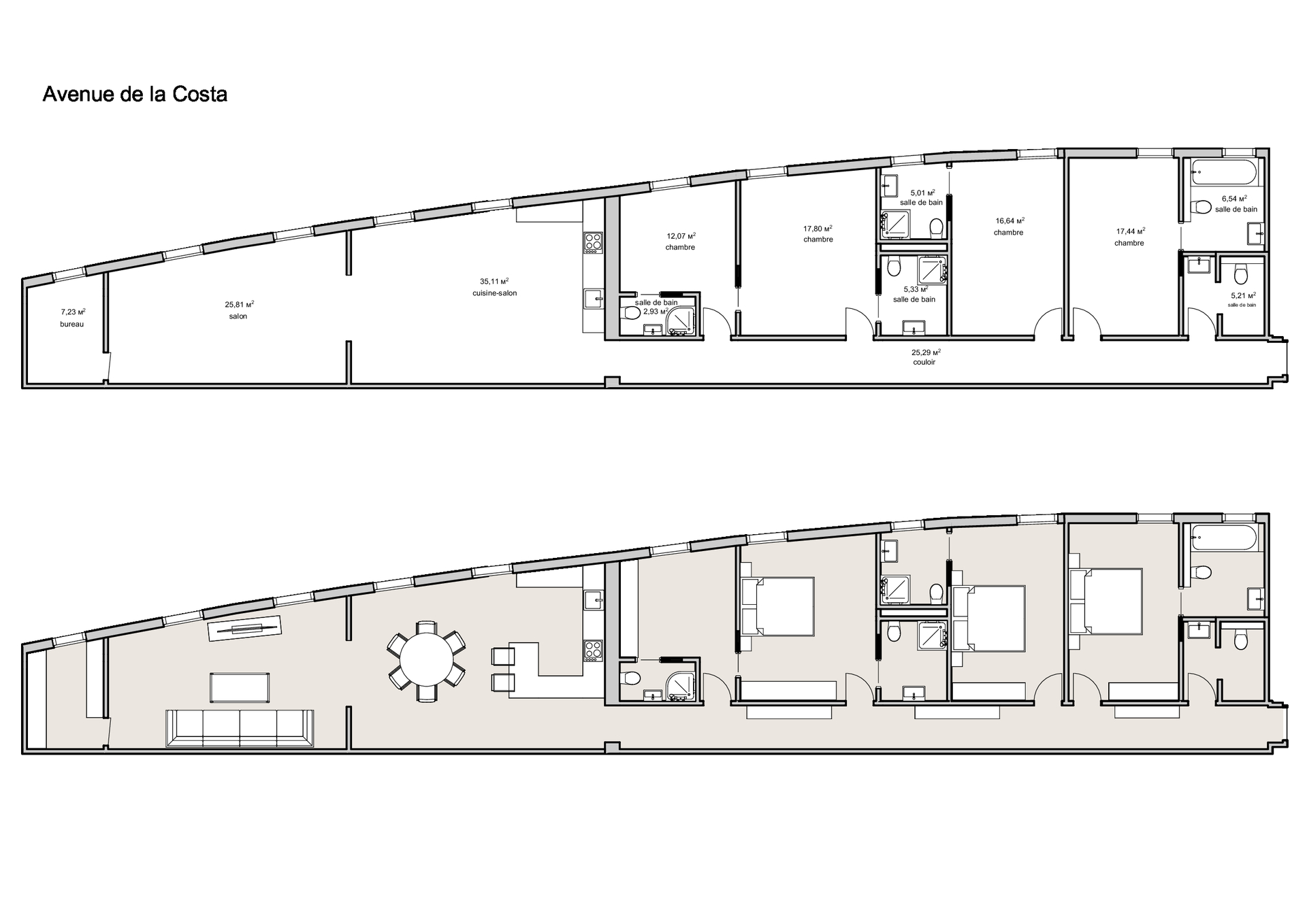
Dans un immeuble bourgeois situé à proximité immédiate du Port et de La Condamine, proche de toutes commodités ainsi que du Carré d’Or. Cet appartement de 6 pièces, en usage mixte, bénéficie d’une surface totale de 185 m² et d’une vue sur le port Hercule.

Il se compose de :

  • un hall d’entrée avec toilette invités ;

  • un séjour / salle à manger en façade ;

  • une cuisine spacieuse entièrement équipée, ouverte sur la salle à manger ;

  • une chambre avec salle de bains attenante ;

  • un dressing pouvant être aménagé en chambre ;

  • une autre chambre avec salle de douche attenante ;

  • une chambre de maître avec sa salle de bains ;

  • une pièce supplémentaire pouvant faire office de bureau ;

  • une chambre de service indépendante d’environ 15 m² ;

  • une grande cave d’environ 10 m².


Situation du bien

Contact

* informations obligatoires

Retour à la liste

FR EN IT