Immobilier Monaco

Bureaux à vendre à Monaco

BOULEVARD DES MOULINS - 2 PIÈCES RÉNOVÉ - LUMINEUX

Retour à la liste

Situé dans une résidence bourgeoise appréciée, en plein de coeur de Monte-Carlo, sur le boulevard des Moulins. Bel appartement entièrement rénové. Idéal pour un "pied-à-terre" en Principauté ou pour de l'investissement.

2 900 000 €
Nombre de pièces : 2 pièces
Type de bien : Appartement
Ville : Monaco
Superficie hab. : 51 m²
Superficie totale : 53 m²
Superficie terrasse : 2 m²
Libération : Immédiatement

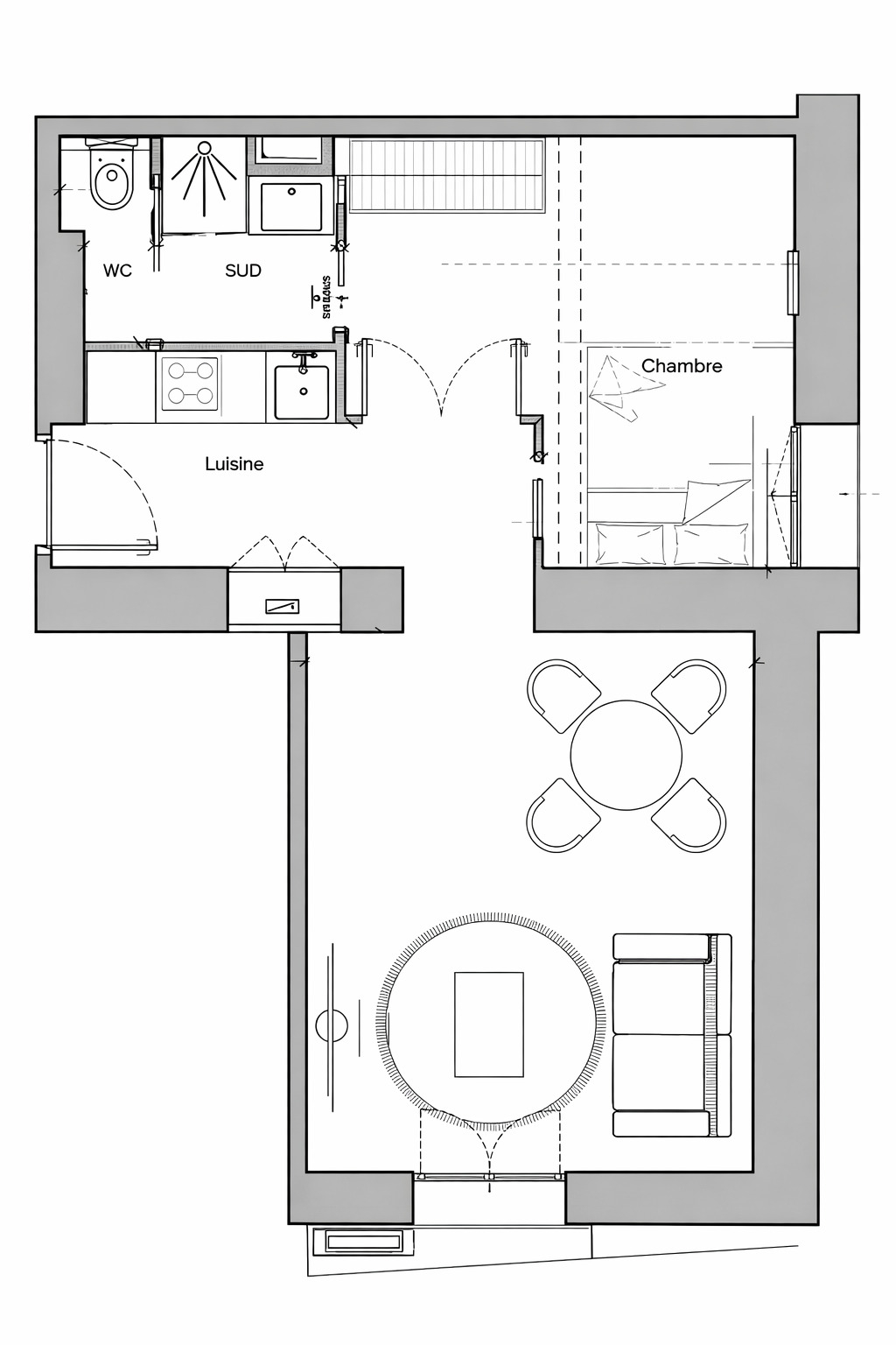
Très bel appartement entièrement rénové, situé sur le boulevard des Moulins, au cœur de la Principauté, dans le quartier recherché de Monte-Carlo. La résidence « Ambassador » est appréciée pour son caractère bourgeois, son standing et la présence d’un concierge en semaine.

Ce 2 pièces d’angle se compose d’une entrée avec cuisine ouverte entièrement équipée, d’un séjour lumineux ouvrant sur un balcon exposé Est, ainsi que d’une chambre avec salle de douche et W.C. De nombreux rangements intégrés complètent ce bien. Sa double exposition garantit un ensoleillement optimal tout au long de la journée.

Situé en façade côté avenue de Grande Bretagne, l’appartement bénéficie d’un environnement calme en plein centre de Monaco. L'appartement est à usage mixte.

À proximité immédiate de toutes les commodités (parcs, transports, écoles) et à moins de 5 minutes des plages du Larvotto par ascenseur.


Situation du bien

Contact

* informations obligatoires

Retour à la liste

FR EN IT